VIELSEITIGER GEWERBECAMPUS MIT WOHNHAUS AUF GROßEM ERBPACHTGRUNDSTÜCK
Dieser Gewerbecampus ist mehr als nur ein klassisches Gewerbeobjekt:
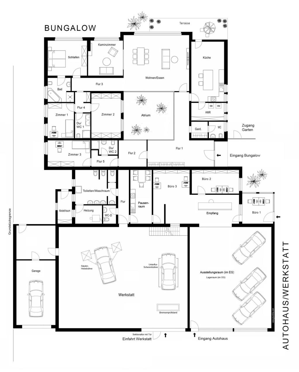
Auf dem 4.583 m² großen Grundstück im etablierten Gewerbegebiet "Brunslohe" in Barsinghausen vereinen sich bestehende Ausstellungs- und Werkstattflächen (insgesamt 587 m² Gewerbe-/Nutzfläche) mit einem angeschlossenen und trotzdem separaten, großzügigen Bungalow (267 m² Wohnfläche) zu einem seltenen Ensemble mit außergewöhnlich vielseitigem Nutzungspotenzial.
Ob Eigennutzung, Vermietung, modernes Campus- oder Mischkonzept: Hier erwerben Sie keinen festgelegten Zustand, sondern einen Standort mit Substanz, Cashflow und langfristiger Entwicklungsperspektive - nutzen Sie die bestehenden Pacht-/Mietverträge finanziell, um jetzt schon strategisch zu investieren und parallel einen Neustart zu planen. Durch die Verpachtung/Vermietung der Einheiten finanziert sich die Immobilie aktuell selbst - ideal auch für Investoren!
ll
Jetzt Exposé anfordern und überzeugen Sie sich selbst bei einer Besichtigung!
ll
Ausstattung
• 4.583 m² Grundstück
• ausreichend Parkflächen vor dem Gebäude und rückseitig auf dem Hof
• viel Grünfläche zur zusätzlichen Nutzung
ll
• GEWERBE: 587 m² Nutzfläche insgesamt (davon u.a. Showroom 112 m², Werkstatt 177 m², Bürofläche 75 m², Lagerfläche, Personalräume)
• WOHNEN: 267 m² Wohnfläche mit Atrium, Garten und Garage
(5,5 Zimmer, große Küche mit angrenzendem Hauswirtschaftsraum, 3 voll ausgestattete (Dusch-) Bäder, ein zusätzliches Gäste-WC, große Fensterfronten Richtung Süden mit Blick ins Grüne, hochwertiger Vinyl-Fußboden in Holzoptik, stilvolle Details, direkter Zugang auf die Terrasse und in den Garten)
ll
Energiewerte
• Art des Energieausweises: Verbrauchsausweis Gewerbe
• Endenergieverbrauch: 339,60 kWh
• Wesentlicher Energieträger: Erdgas leicht
• Baujahr des Gebäudes laut Energieausweis: 1972
• Energieeffizienzklasse: H
ll
Lage
Das Gewerbegebiet Brunslohe in Barsinghausen - ein leistungsstarker, zukunftssicherer Unternehmensstandort- bietet Unternehmen einen modernen, gut strukturierten Standort mit hervorragenden Rahmenbedingungen für nachhaltiges Wachstum. Die sorgfältig geplante Gebietsausweisung als Gewerbegebiet (GE) schafft maximale Flexibilität für unterschiedlichste Branchen - von Produktion über Handwerk bis hin zu Dienstleistung und Logistik.
ll
Ein besonderer Vorteil ist die strategisch exzellente Lage: Brunslohe liegt verkehrsgünstig im westlichen Speckgürtel der Region Hannover und ist optimal an das regionale wie überregionale Straßennetz angebunden. Die Nähe zur Bundesstraße 65 und den Autobahnen A2 und A7 ermöglicht schnelle Verbindungen in alle Richtungen. Auch der Flughafen Hannover und der Anschluss an die S-Bahn eröffnen attraktive Optionen für Unternehmen mit Logistik- oder überregionalen Geschäftsaktivitäten.
ll
Dank der unmittelbaren Nähe zum Stadtgebiet Barsinghausen profitieren ansässige Betriebe von einer gut ausgebauten Infrastruktur, kurzen Wegen und einem breiten Angebot an Dienstleistungen, Einkaufsmöglichkeiten und Arbeitskräften. Das gepflegte Umfeld und die geordnete Gebietsentwicklung schaffen zusätzliche Standortqualität und Wertstabilität.
ll
Sonstiges
ll
ERBPACHTGRUNDSTÜCK
Die Vorteile eines Erbpachtgrundstücks sind oft unterschätzt, aber enorm wertvoll, attraktiv, sicher und wirtschaftlich sinnvoll. Gerade in Zeiten hoher Immobilienpreise bietet ein Erbpachtgrundstück Vorteile, die es in dieser Form beim klassischen Grundstückskauf nicht gibt.
ll
Hier sind die wichtigsten Punkte, die Sie unbedingt wissen sollten:
Der Kauf dieses Objekts als Erbbauberechtigter bietet außergewöhnlich attraktive wirtschaftliche Vorteile. Da das Grundstück nicht mit erworben wird, erhalten Käufer deutlich mehr Gebäude, Fläche und Potenzial für spürbar weniger Kapital, profitieren von geringeren Eigenkapitalanforderungen, niedrigeren Kreditraten und einem größeren finanziellen Spielraum für Modernisierung oder Expansion. Der planbare Erbbauzins funktioniert wie eine feste, absetzbare Miete - bei voller Eigentümerkontrolle über die Gebäude.
ll
Kaufpreis: 749.900€

Ausstellungsraum
Empfang Büro
Büro Wintergarten
Werkstatt 01
Werkstatt 03
Werkstatt 02
Pausenraum
Bungalow Eingang
Bungalow Flur
Bungalow - Blick ins Wohn-Esszimmer
Bungalow - Wohn-Esszimmer
Bungalow - Blick ins Kaminzimmer
Bungalow Küche 01
Bungalow Küche 02
Bungalow - HWR
Bungalow Schlafzimmer
Bungalow Kinderzimmer
Bungalow Drohne Garten
Bungalow Terrasse
Bungalow Garten
Logo
Angebot