EINFAMILIENHAUS IN GÜMMER
Fortgeschrittener Bauzustand | Übernahme ab April 2026 | Innenausbau frei gestaltbar
kk
1. Objektbeschreibung
Zum Verkauf steht ein Einfamilienhaus innerhalb einer modernen Viererhausreihe im Neubaugebiet von Gümmer, einem beliebten Ortsteil der Stadt Seelze in der Region Hannover.
Das Haus war ursprünglich Teil eines Bauträgerprojekts, das aufgrund einer Insolvenz vor rund einem Jahr unterbrochen wurde. Die Eigentümergemeinschaft (real geteiltes Eigentum – keine WEG) hat sich erfolgreich aus dem Insolvenzverfahren gelöst und koordiniert seitdem alle weiteren Schritte eigenständig.
Das Objekt befindet sich in einem fortgeschrittenen Rohbauzustand. Die Gewerke Elektro, Sanitär und Heizung werden noch fertiggestellt. Der weitere Innenausbau bleibt bewusst offen und kann vom Käufer individuell nach eigenen Vorstellungen umgesetzt werden.
___________________________________________________________________________
2. Aktueller Baustatus
Bereits fertiggestellt:
• Rohbau vollständig abgeschlossen
• Dach eingedeckt
• Fenster und Haustür eingebaut
In Fertigstellung:
• Elektroinstallation
• Sanitärinstallation
• Heizungsanlage
• Estrich
Nicht enthalten (frei planbar):
• Malerarbeiten
• Bodenbeläge
• Innentüren
• Außenanlagen
___________________________________________________________________________
3. Objektkennzahlen
• Haustyp: Einfamilienhaus / Reihenhaus
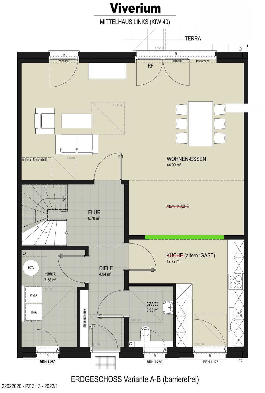
• Wohnfläche: ca. 146,83 m²
• Grundstücksfläche: ca. 250 m²
• Zimmer: 5
• Bäder: 1
• Stellplätze: 2
• Heiztechnik: in Installation
• Energieeffizienz: abhängig von finaler Ausstattung
• Verfügbarkeit: ab April 2026
___________________________________________________________________________
4. Energiewerte
• Art des Energieausweises: Bedarfsausweis
• Endenergieverbrauch: 5,00 kWh
• Wesentlicher Energieträger: Elektro
• Baujahr des Gebäudes laut Energieausweis: 2023
• Energieeffizienzklasse: A+
___________________________________________________________________________
5. Lage – Gümmer (Seelze)
Das Objekt liegt in einem jungen, ruhigen und familienfreundlichen Neubaugebiet im Ortsteil Gümmer der Stadt Seelze.
Lagevorteile:
• Ca. 15 Minuten mit der S-Bahn bis Hannover Hauptbahnhof
• Gute Anbindung an Seelze, Letter und Garbsen
• Einkaufsmöglichkeiten, Ärzte und Apotheken in kurzer Entfernung
• Kitas, Grundschule und weiterführende Schulen gut erreichbar
• Sehr hoher Freizeitwert durch Felder, Radwege und Naturflächen
• Schnelle Anbindung an Autobahnen und Bundesstraßen
___________________________________________________________________________
6. Sonstiges
• Verkauf erfolgt privat
• Alle Bauunterlagen, Grundrisse und Gewerkeübersichten vorhanden
• Besichtigungen nach Terminvereinbarung möglich
• Besonders attraktiv für Käufer, die den Innenausbau individuell gestalten möchten
___________________________________________________________________________
Dieses Objekt bietet eine seltene Gelegenheit, ein nahezu fertiggestelltes Neubauhaus ohne Bauträgerbindung zu erwerben und den Innenausbau komplett nach eigenen Vorstellungen umzusetzen.
Eine attraktive Kombination aus
Planungssicherheit, Gestaltungsfreiheit und hervorragender Lage im direkten Einzugsgebiet von Hannover.
ll
Kaufpreis: 464.900 €

Flur
Gäste-WC
Hauswirtschaftsraum
Küche / Gästezimmer
Küche / Gästezimmer
Flur
Flur
Wohn-/Esszimmer
Wohn-/Esszimmer
Wohn-/Esszimmer
Terrasse
Treppenhaus
Treppenhaus
OG
OG
OG
Abstellraum
OG
OG
Berechnungen Rauminhalt
Berechnungen Wohnfläche
Grundriss EG
Grundriss OG
Schnitt
Lageplan